
Группа компаний «Новые Технологии» производит локальные очистные сооружения. ЛОС «НТ-БИО 2» характеризуются высоким (до 99 %) уровнем очистки стоков и соответствуют СанПиН. Автономная канализация «НТ-БИО» - качественное и удобное в эксплуатации очистное сооружение нового поколения.
Самыми распространенными материалами для изготовления локальных очистных сооружений являются пластик и бетон. Необходимо также учитывать, что системы в виде колец (из пластика или бетона) бывают недостаточно эффективны при высоком уровне грунтовых вод. Это связано с тем, что отвод полуочищенных стоков происходит путем их вытеснения новыми сточными водами.
В связи с этим септик может быть заполнен еще до поступления воды из канализации, что сведет на нет его функциональность. При этом цена таких решений в Москве – наиболее доступная.
Автономная канализация НТ БИО 2н представляет собой цилиндрическую емкость из прочного износостойкого полиэтилена, разделенного на несколько отсеков. Каждый из них отвечает за выполнение определенного этапа очистки:
Многоэтапный процесс позволяет увеличить эффективность очистки до 99%, даже при поступлении сильно загрязненных бытовых стоков.
Дополнительным преимуществом станции глубокой биологической очистки НТ БИО 2н является универсальность использования вне зависимости от состава почв и уровня грунтовых вод. Кроме того, системой можно пользоваться периодически: комплекс не нуждается в консервации, что крайне важно при установке его на даче.
Расчетная численность жильцов, на которых рассчитана система: семья до 4 человек. Пропускная способность – около 0,6 куб. м. в сутки.
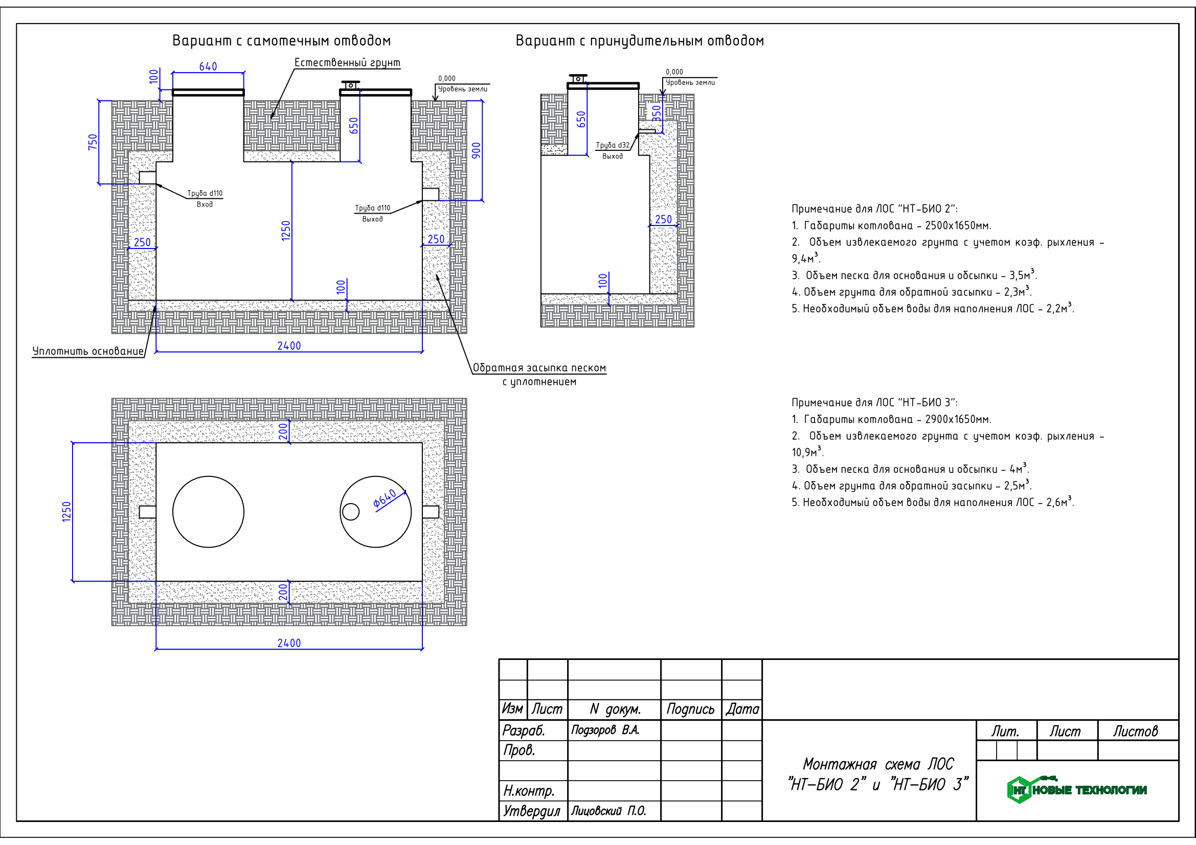
Необходимо вырыть котлован, проложить утепленную канализацию, обеспечить герметичность всех соединений. Грамотный монтаж позволяет безопасно провести монтажные работы и гарантировать работоспособность системы.
| Комплектация | |
| Корпус локального очистного сооружения с установленными воздуховодами, регулировочными кранами, аэрационными элементами | 1 шт |
| Крышки полимерные с УФ защитой | 2 шт |
| Компрессор Secoh | 1 шт |
| Высокоэффективный биофильтр «СПОНЖ» | 1 шт |
| Биофильтр из полипропиленовой нити (срок службы до 50 лет) | 1 шт |
| Паспорт на изделие. Руководство эксплуатации | 1 шт |
| Гарантийный талон | 1шт |
| Декларация о соответствии | 1 шт |